在线咨询
在线沟通,请点我在线交谈
联系电话:
183-2141-9475

DBPW系列

DBPW简介
DBPW等螺距系列是采用螺杆内部冷却方式提高耐久性的工业用干式真空泵,长时间运行也能维持高真空度及抽气量,
致力于提高工艺稳定性和生产效率。


特点
l 螺杆直接冷却
○冷却水对螺杆内部进行直接冷却
○螺杆表面温度低,不会造成工艺气体碳化现象
○低温的螺杆涂层寿命延长,适用于化学和腐蚀性气体工艺
○因为螺杆自体无热膨胀,真空度到达的时间比较短
○运行中螺杆与螺杆、螺杆与壳体不会发生卡死
l 简单的内部结构
○外壳, 螺杆的非接触驱动延长了寿命
○使内部结构的简单化,让维修及维护更加容易,减少小故障
l 机械密封
○采用密封效果比较好的产品,防止工艺中水或油的污染
○与其他公司的唇形密封相比密封效果增加
l 干式单螺距螺杆
○干式螺杆真空泵腔内无油、无水,因而不会系统和环境造成污染
○不受外部及内部环境的影响,长时间运行也能保持一定的真空度
○采用单螺距螺杆,容易排出反应生成物及其他固体物质
l 涂层
○采用了耐腐蚀性的特殊特氟龙涂层
○对毒性、腐蚀性气体及凝缩性气体的处理容易
l 泵使用压力范围
○螺杆的机械性回转形成真空,在所有压力范围都可连续运行
○从高真空到低真空,没有根据真空度变化的消耗动力变化
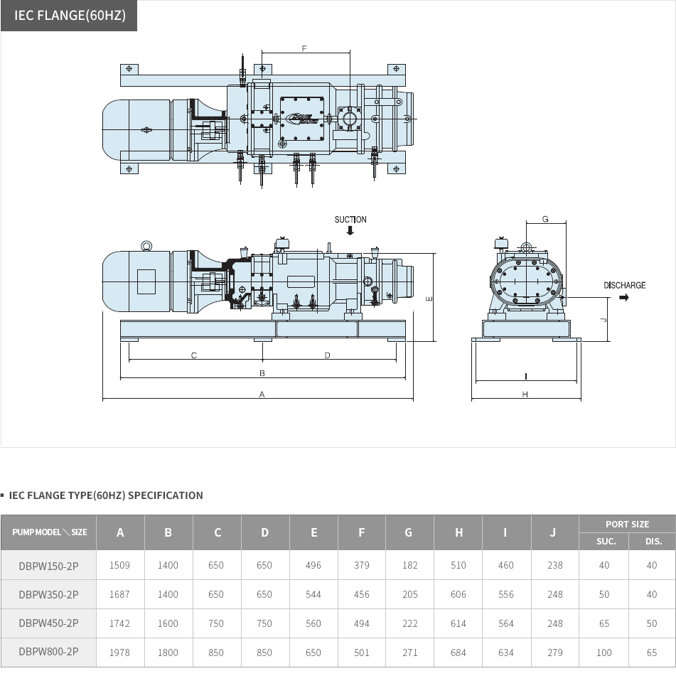
l IEC法兰
○采用IEC法兰, 增大顾客便利性
○泵安装/移动时,不需要对轴进行校中,安装简单
产品规格

性能曲线

外型尺寸图


